69999$

Продажа просторной квартиры Виноградарь ЕОсэля ЕВидновлэння

Продажа квартиры в Варшавском квартале!

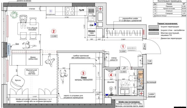
Александра Олеся 10, 8/23-эт, 51/17/22

Просторная квартира на очень удобном этаже, окнами во двор и с почти завершенным ремонтом. Выполнены все самые трудоемкие финансово затратные и грязные работы:

— разработан дизайн проект,

— разведена электропроводка, канализация,

— куплен кондиционер и выполнены подготовительные работы для его установки,

— чистовая штукатурка стен и потолка,

— закуплены строительные материалы.

Осталось совсем немного до покупки мебели и Вы сможете наслаждаться красивыми закатами из окон своей квартиры.

ЖК Варшавский плюс — один из самых комфортных, с максимально развитой внутренней инфроструктурой и удобной транспортной развязкой, шаговой доступностью к социальным объектам и природе.

Право собственности получено!

Налоги платим!

Детали

Цена : 69999$
Тип : Квартира
Площадь : 51
Адрес : Олеся Александра 10
Город : Киев
Район : Подольский

Внутренняя структура

Комнат : 2
Спальни : 2
Ванные комнаты : 2

Найти на карте

Get Directions
Любовь Федорова
Я согласен, чтобы этот сайт собирал мое имя, адрес электронной почты и телефон.

Недавние статьи

TOP

Compare Listings

заглавие Цена Положение дел Тип Площадь Цель Спальни Ванные комнаты