399999$

Продаж будинку з дизайнерським ремонтом в Гатному!

215м на ділянці 4 сотки у закритому комплексі.
Новий сучасний двоповерховий будинок із керамоблоків з утепленням мінеральною ватою, з панорамними вікнами, терасами, гаражем.
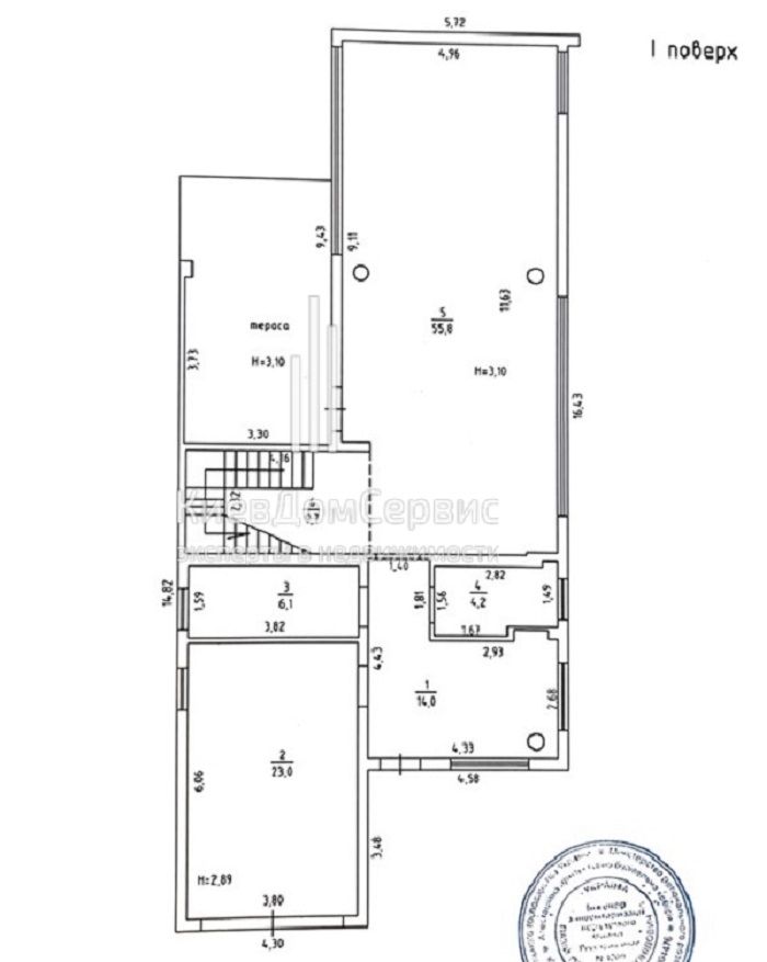
На першому поверсі простора вітальня зі їдальнею та кухонною зоною, бойлерна, з/в, тераса та гараж.
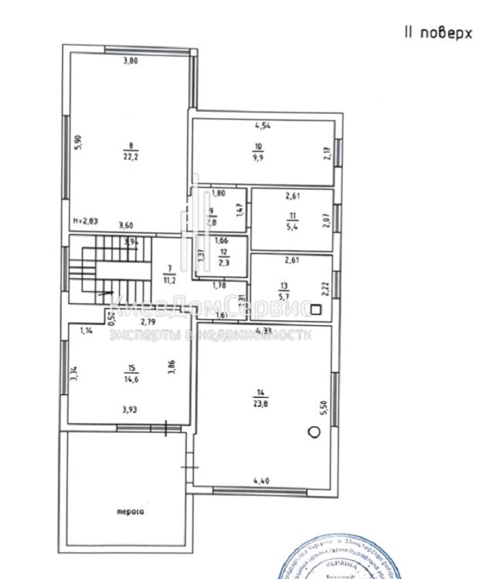
Три спальні на другому поверсі, тераса, вбиральня, пральна, дві з/в.
Ремонт робили для себе якісно, ​​добротно.
Опалення реалізовано від електрокотла. Тепла підлога на першому поверсі, радіатори та конвектори на другому. Вода зі свердловини із системою очищення, біосептик.
До КиЇва 5 хв на машині.

Детали

Цена : 399999$
Тип : Дом
Площадь : 215
Адрес : Гатное Киевская ул
Город : Киев
Район : Голосеевский

Внутренняя структура

Комнат : 4
Спальни : 3
Ванные комнаты : 3

Найти на карте

Get Directions
Любовь Федорова
Я согласен, чтобы этот сайт собирал мое имя, адрес электронной почты и телефон.

Недавние статьи

TOP

Compare Listings

заглавие Цена Положение дел Тип Площадь Цель Спальни Ванные комнаты