199999$

Продажа дома Крушинка КГ Семь озер ремонт

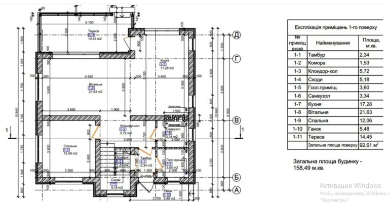
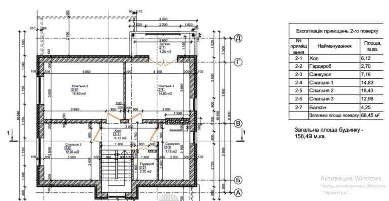
КГ Семь Озёр, ул. Кибенко, дом 160 м.кв.(монолитокаркас, наполнение — газоблок, утеплитель — 15 см. базальтовая вата, штатные окна Steko, заменены на Rehau 70 увеличенной энергоэфективности ), ровный участок правильной формы с садом из фруктовых деревьев 10 соток, современный ремонт 2019 года, с использованием лучших экологически чистых материалов европейского производства, дом укомплектован мебелью и техникой ведущих мировых брендов для комфортного проживания, идеальная планировка: 1-й эт., кухня-гостиная, с/у, спальня, гардеробная, терраса, 2-й эт., с/у, 3 спальни, гардеробная, оптоволоконный интернет, ввод электричества 12,5 кВт.(2-х зонный «день-ночь»), водоснабжение — центральное, система «Тёплый пол»(водный), бесперебойное и бесплатное, канализация — септик, интеллигентные соседи, большая детская площадка, зона BBQ, закрытая охраняемая территория городка, видео наблюдение, рядом супермаркет, магазины, кафе, рестораны, отличные подъездные пути, до Киева — 20 минут. Идеальное место для жизни и отдыха!
Видео обзор вышлю по запросу.

Детали

Цена : 199999$
Тип : Дом
Площадь : 160
Адрес : Кобенко
Город : Киев
Район : Голосеевский

Внутренняя структура

Комнат : 5
Спальни : 4
Ванные комнаты : 2

Найти на карте

Get Directions
Любовь Федорова
Я согласен, чтобы этот сайт собирал мое имя, адрес электронной почты и телефон.

Недавние статьи

TOP

Compare Listings

заглавие Цена Положение дел Тип Площадь Цель Спальни Ванные комнаты